top of page

FAMILY APARTMENT BLOCK

Project

Location

Athens

Year

2005

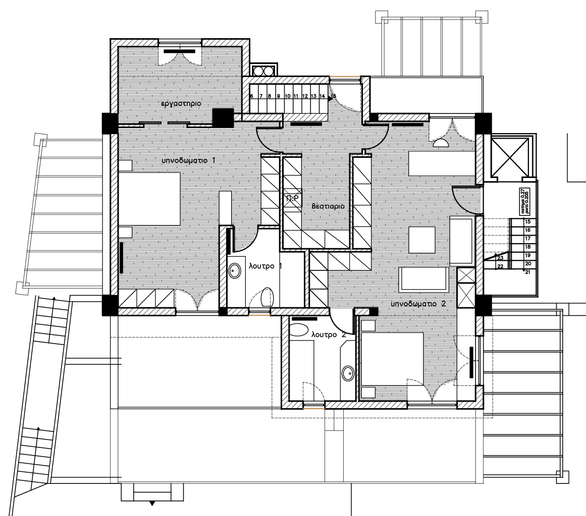
Family Apartment Block In a Hill

  • White Facebook Icon
  • White Instagram Icon
bottom of page